Bioclimatic Hotel Tower in Phnom Penh
BIOCLIMATIC HOTEL TOWER in PNHOM PENH
HOSPITALITY • Conception • 2021
PROJECT: CHROY CHANGVAR RESORT CONDO HOTEL
CLIENT: PHNOM PENH LAND
COLLABORATION:
STRUCTURAL Concept Design : T3 ARCHITECTS
MEP Design : Phnom Penh Land Technical Team
T3 ARCHITECTS designed the Chroy Changvar Resort Tower located in Phnom Penh, with the challenge to propose the “Tower of the Future” to offer a very unique experience for guests while saving as much energy as possible thanks to bioclimatic principles.
It is always a question for T3 Team to accept or not the Design Mission for a Tower, as we know that the carbon footprint of a high-rise building is higher than a mid-rise or low-rise building. On the other hand, we are in Phnom Penh, the economical center of Cambodia, developing fast, having China’s cities and Singapore as a reference in mind, and also want to get Towers. It is a way to optimize the land and create high density. It is also a good way to offer a wonderful views on surroundings and benefits from the winds around compare to a single villa, with a very low efficiency on that topics. SO, as we have a good relationship with a Client, we decided to accept and support them in designing this Condo-Hotel & Resort Tower, but promoting bioclimatic principles and energy efficiency as follow:
- Double skin façade to protect the main wall from sun (and rain) exposure.
- Public spaces & circulations with cross natural ventilation – no Air conditioning
- Open courtyard in the middle of the building which create a natural air flow by convection (hot air going up, it is evacuated at the upper level with suspended garden).
- Suspended garden at 2 levels to bring freshness and biophilic atmosphere
- Parking are naturally ventilated (no AC) and protected by metal grids from rain and sun
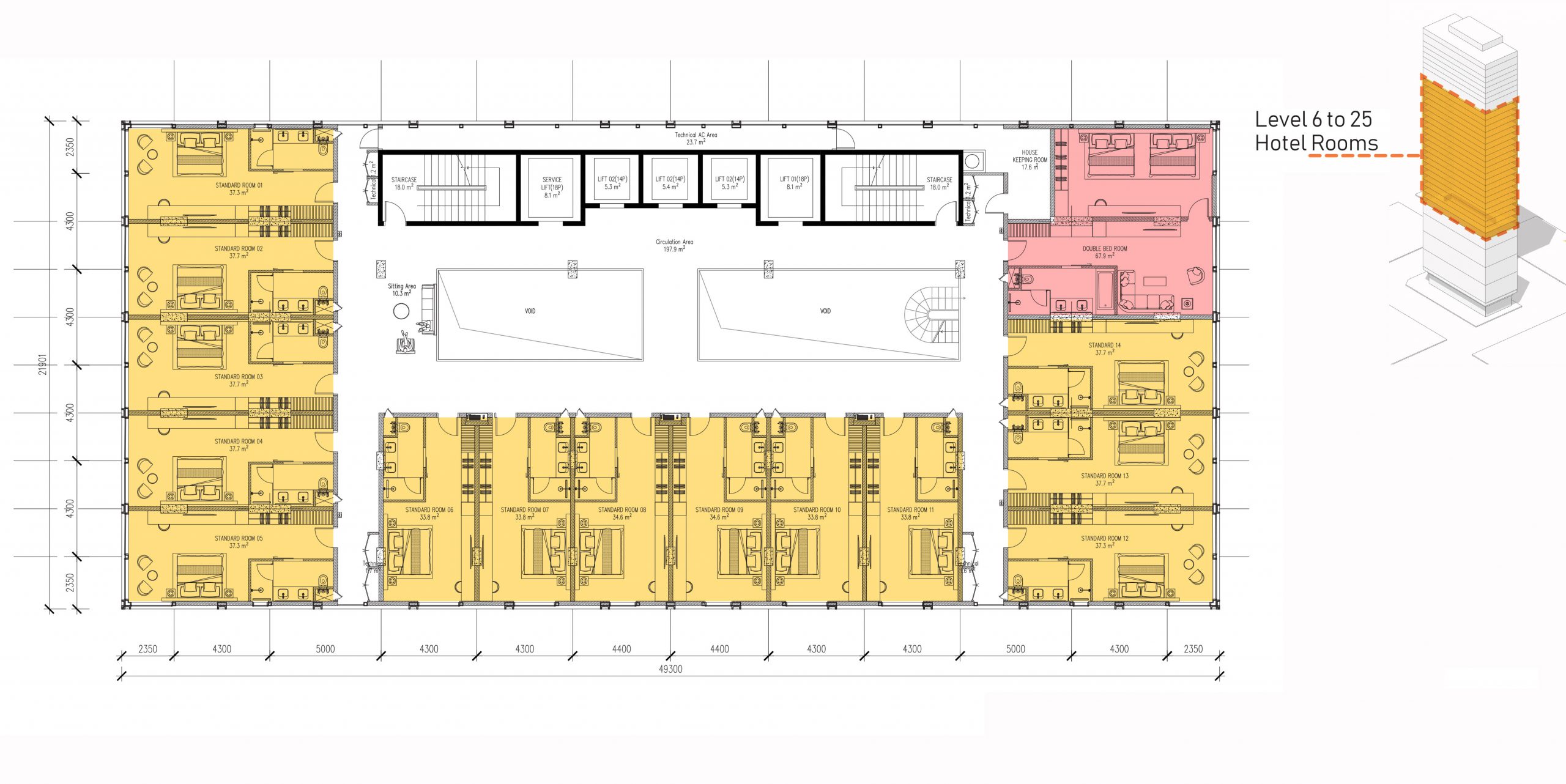
The result is a very elegant Tower, with a double skin facades inspired by Khmer traditional architecture, a beautiful patio with circulation around to access to the bedrooms. The last floors are dedicated to F&B (restaurant, bar, etc.), Wellness (clinic, spa, gym), events (ball room, conference center), work spaces (offices) as well as entertainment functions (gym, art…). At level 35, we have a large infinity Pool with a rooftop Bar to enjoy the view on Phnom Penh and relax with the evening breeze of tropical countries…
Improve energy efficiency
T3 Team proposed to follow bioclimatic principles to reduce energy consumption of the building and improve the comfort of customers.
Designers decided to add a double ventilated facades (pattern inspired by traditional architecture) to create shadow on the main façade walls and ensure a good sun protection. Interior patio is open till the suspended garden level and create a natural air flow by convection, which allow to create air flow and evacuate hot air as the same time. It is a lowtech way to bring more comfort and save energy
Rooftop have been insulate properly to avoid overheating and reduce AC consumption.


