MASTERI PENTHOUSE – SAIGON
MASTERI PENTHOUSE – SAIGON
RESIDENTIAL • COMPLETED • 2025
CLIENT: Private
INTERIOR DESIGN: T3 ARCHITECTS
Kitchen Furniture: Fine Scandinavia
CONSTRUCTION: Minh Chuong Construction
PHOTOGRAPHER: Fred Wissink
The homeowner of this penthouse has a particular fondness for industrial design. Previously, T3 had the opportunity to design an apartment for the same client in this style — a unique, bold-looking space that he was extremely satisfied with. This time, the client entrusted T3 once again to design a new home. Unlike the previous project, this house needed to adapt to the family’s changing needs, as they welcomed new members. The requirements for functionality and aesthetics evolved accordingly. T3 proposed blending industrial and natural design styles to harmonize the preferences of all family members.
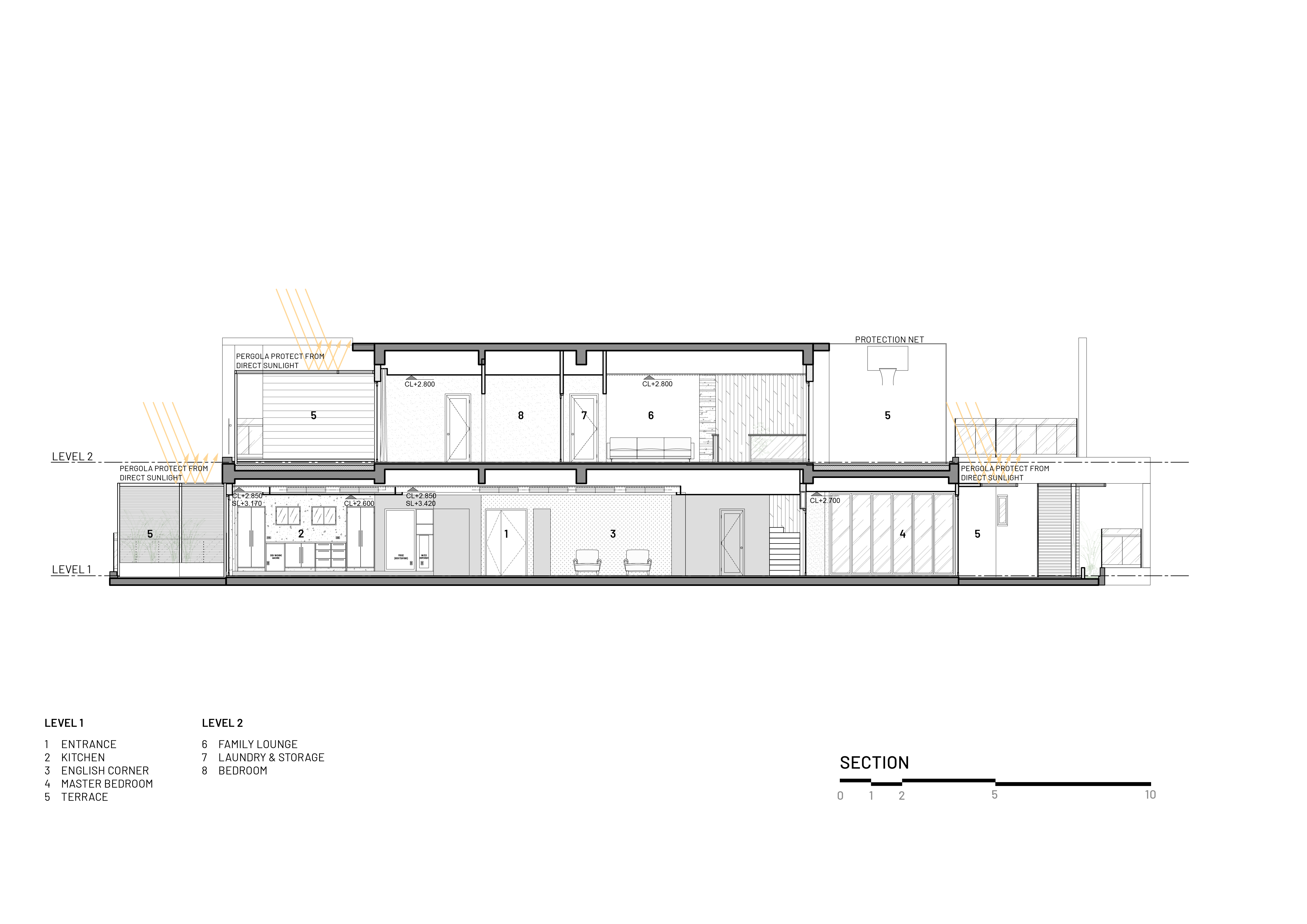
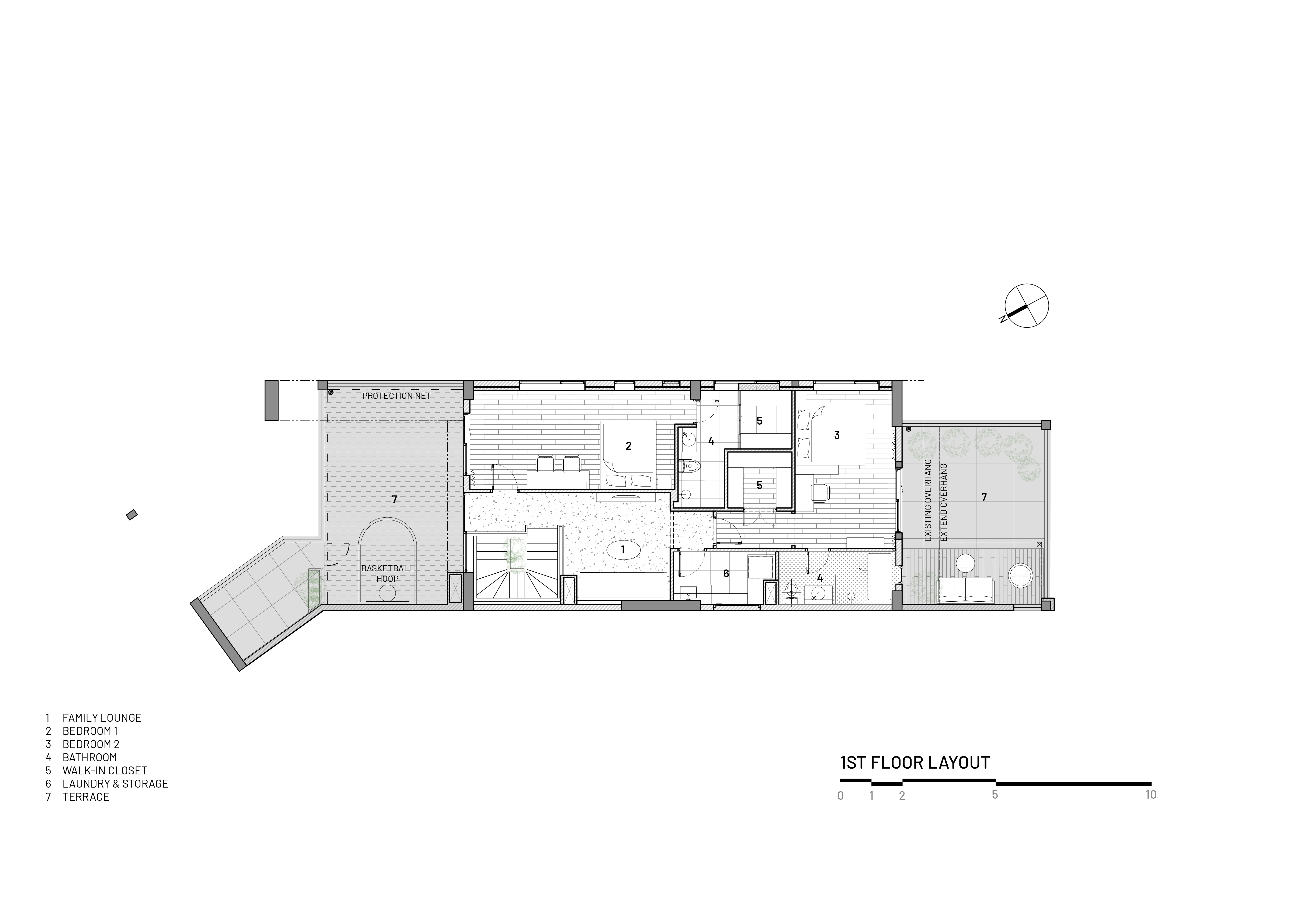
The layout was carefully arranged to ensure both connectivity and privacy, with spaces tailored to the personal needs of each family member. These include a special guest area with an English corner and BBQ space, two expansive wardrobes and a relaxation bathtub for the wife, a basketball court for the son, and an outdoor relaxation corner for the daughter. We emphasized the use of natural, low-carbon, and sustainable materials such as waxed concrete, stucco, and timber wood. These materials are not only environmentally friendly but also exude timeless beauty. Additionally, the design maximizes natural light throughout the home to enhance comfort and reduce energy consumption. Since the house is located on a bustling urban thoroughfare, we proposed sound-absorbing wooden ceilings to create a tranquil, relaxing environment for its occupants.
As supervising authors during the construction phase, we worked closely with the construction team and suppliers to ensure that every detail of our design was executed flawlessly.


