KeGa Villa – Vietnam
KEGA VILLA
RESIDENTIAL • COMPLETED• 2025
CLIENT: Private
ARCHITECTURE & INTERIOR DESIGN: T3 ARCHITECTS
LANDSCAPE: Interscene
MEPS: Harmonie
CONSTRUCTION: Harmonie
PHOTOGRAPHER: Hiroyuki Oki
KeGa Villa is a private weekend retreat designed by T3 Architects, located in the rural landscape of Ke Ga, Vietnam, between the sea and a national park. Conceived as a place for a large family and visiting friends, the project seeks to balance communal living with privacy, while responding carefully to the local climate and natural surroundings.
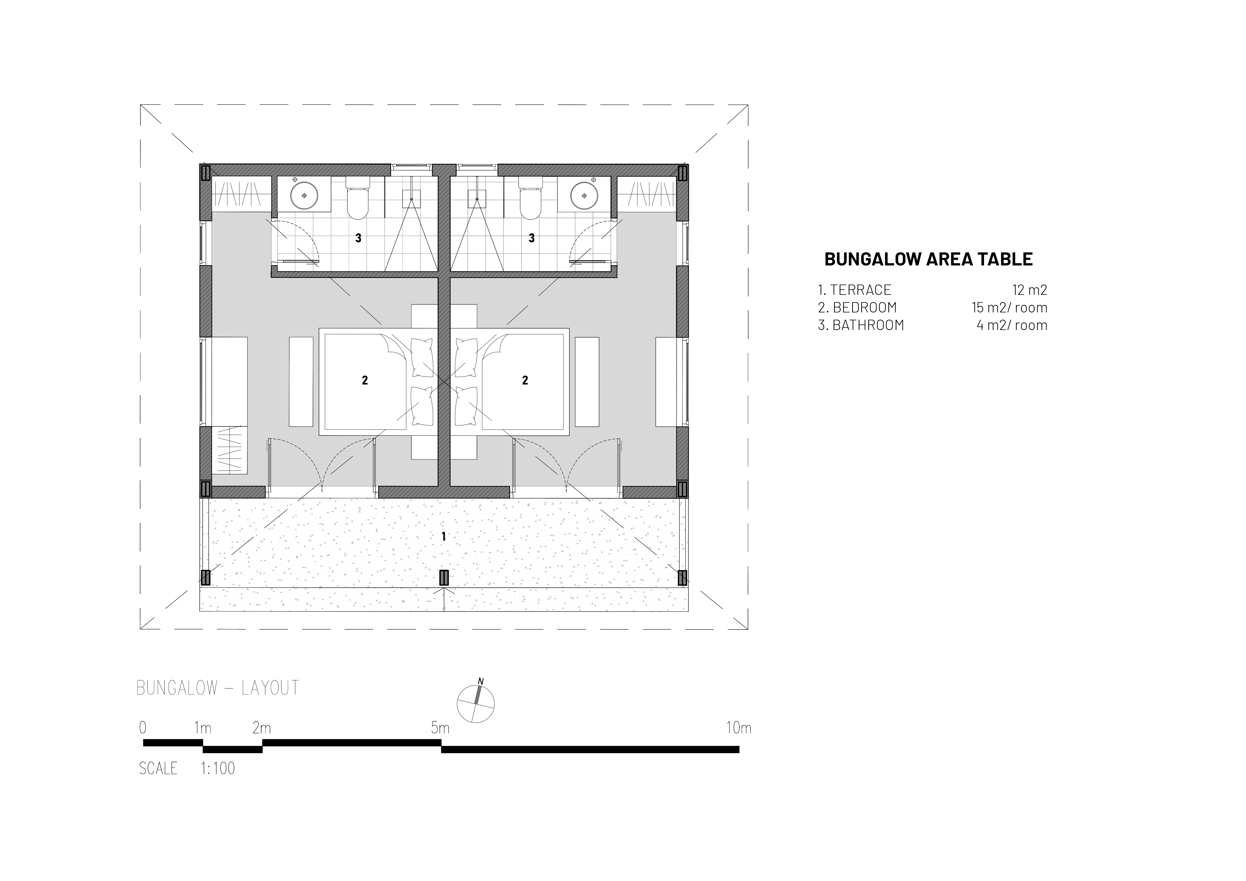
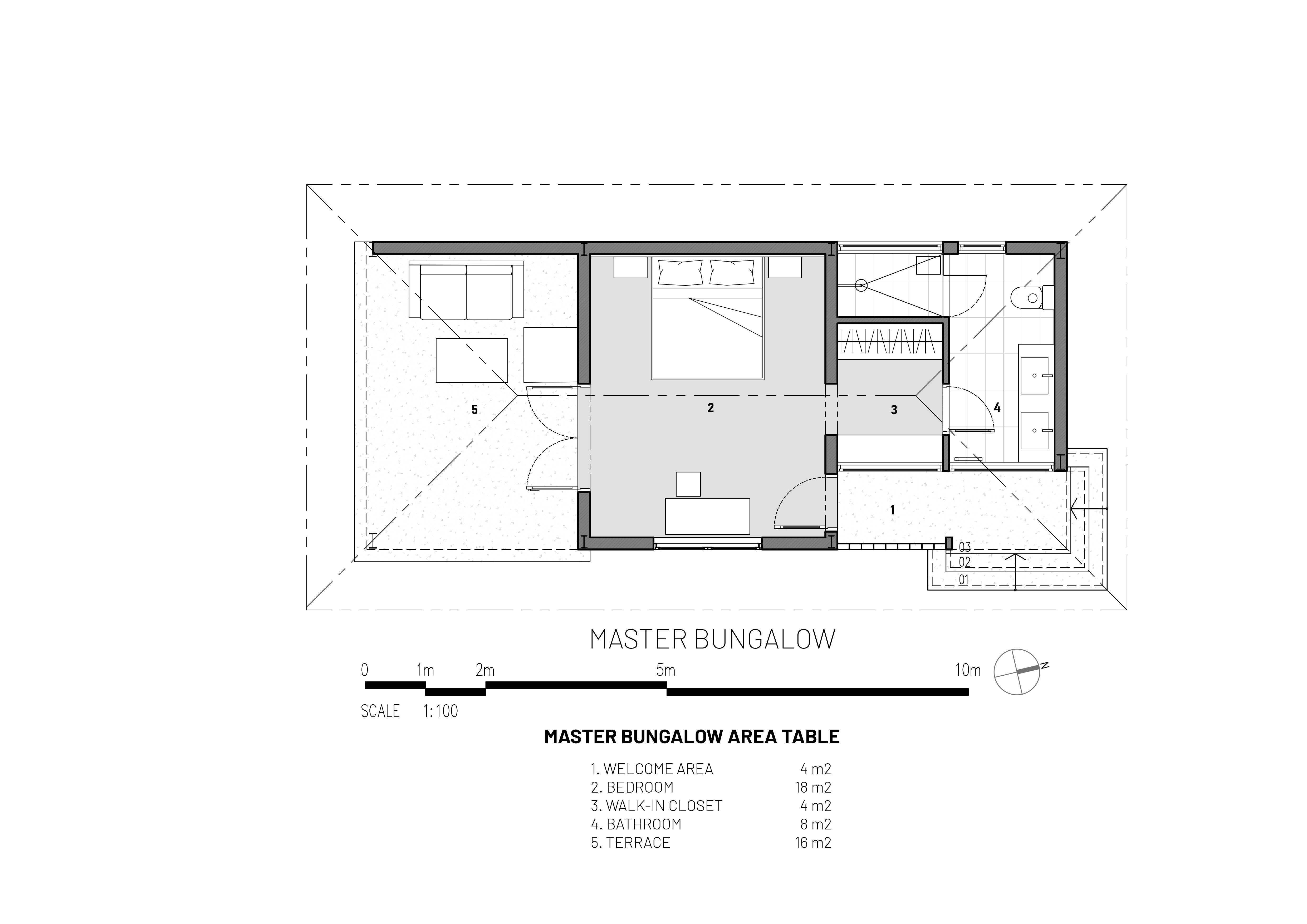
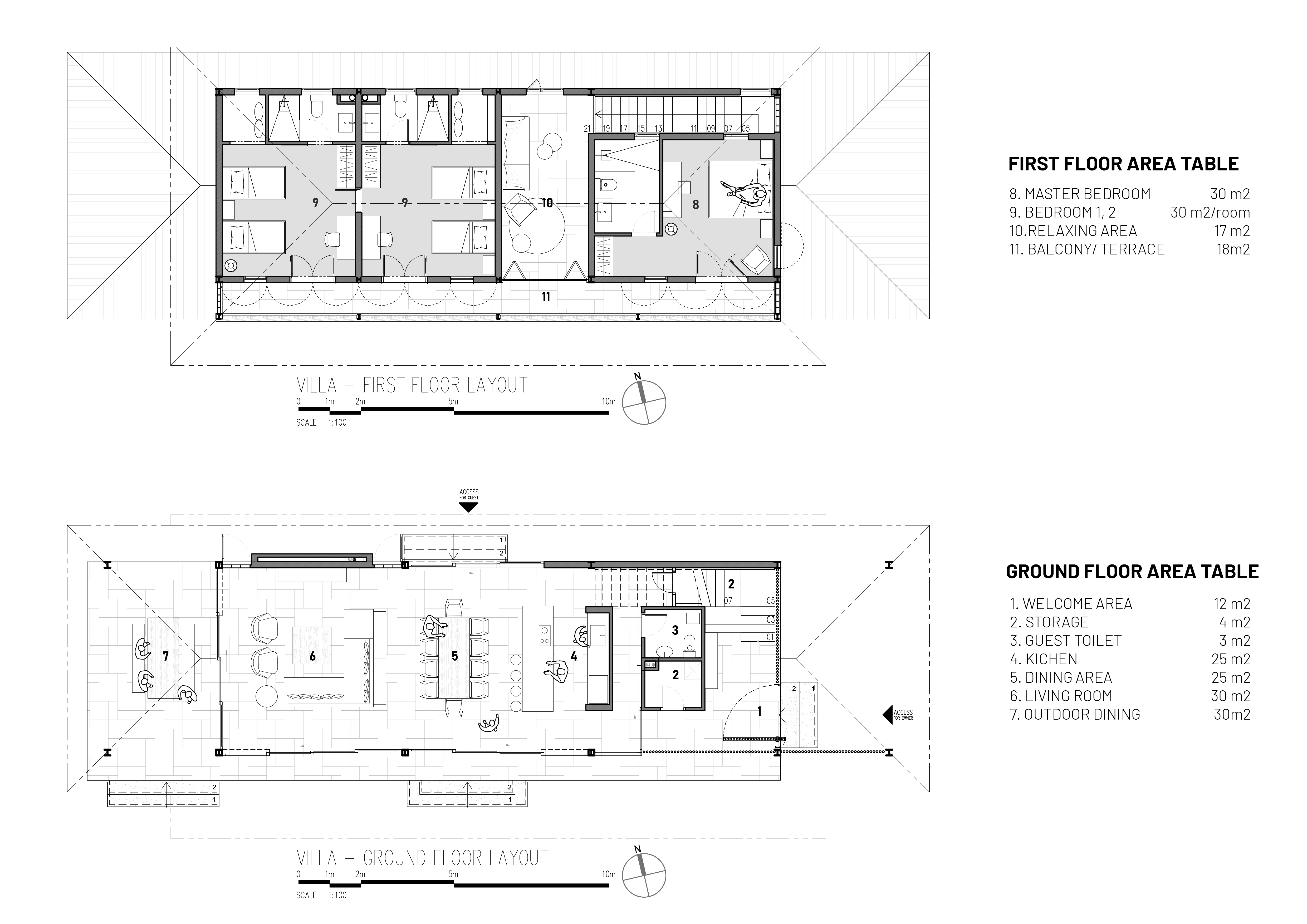
The project is organized as a two-storey main villa accompanied by three independent bungalows. The family bedrooms are located on the upper level of the main house, with two connected rooms for the kids and a master suite for the couple, while the ground floor is dedicated to shared living spaces that open directly to the garden and swimming pool. This clear vertical separation allows daily life to unfold openly at ground floor as a social level, while preserving privacy and elevated views at the level above.
The additional bungalows are positioned as separate volumes within the site, providing flexible accommodation for guests while maintaining a degree of independence from the main house. The covered and protected social areas of the main villa—particularly the open kitchen and living spaces at ground floor—also serve the bungalows, reinforcing the central garden and pool as shared communal spaces and forming the social heart of the project.
The architecture is shaped by bioclimatic principles. At ground floor, large glass sliding panels allow the main living spaces to be fully opened during occupation, maximizing natural ventilation, daylight, and visual continuity between interior and exterior spaces. When the house is unoccupied, or during periods of strong winds and sea breezes, these panels can be closed to ensure security and protection from the elements.
Cross-ventilation is enhanced through careful building orientation, generous openings, and the use of ventilation bricks integrated into the façades, allowing prevailing sea breezes to move naturally through the site while filtering light and heat.
On the upper level, bedrooms are protected by deep roof overhangs and shaded circulation corridors, as a buffer, reducing direct solar gain while allowing long views toward both the surrounding landscape and the sea. Swing louver panels provide adjustable shading, privacy, and airflow, responding to changing weather conditions throughout the year.
At the Main Villa entrance, a screen of melaleuca timber poles forms a permeable timber screen that filters light, wind, and views, creating moving patterns of light and shadow throughout the day while controlling access to the private areas of the house. A pivoting door marks the main entrance to the Villa, defining the transition between shared and private zones while allowing the ground-floor living spaces to remain accessible to guests and maintaining a clear boundary to the family’s private zone above.
Material choices reinforce the project’s connection to place and climate. Natural and locally sourced materials such as stone, wood, and ventilation bricks are used for their durability, thermal performance, and tactile quality. Large roof overhangs provide protection from both sun and heavy seasonal rains, while enhancing thermal comfort and durability.


